Planning Studies
-
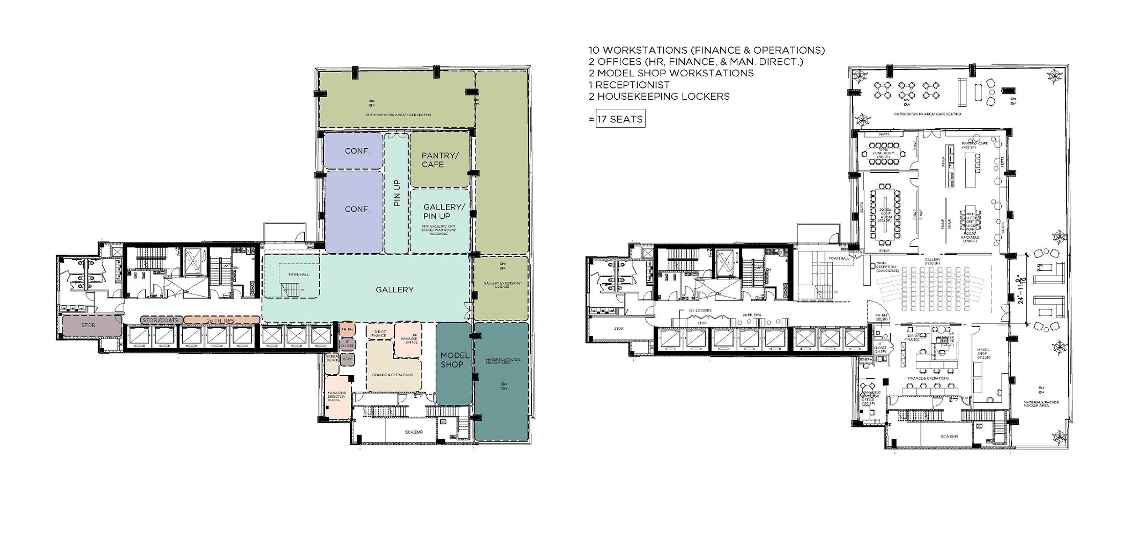
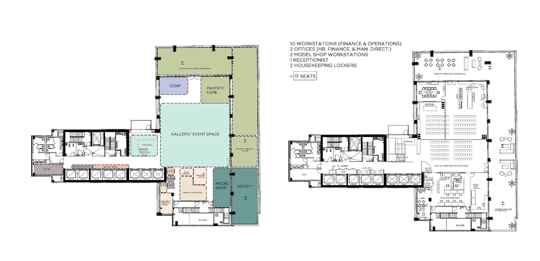
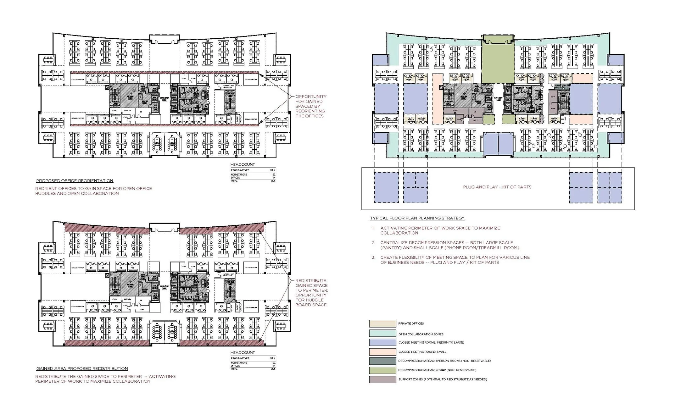
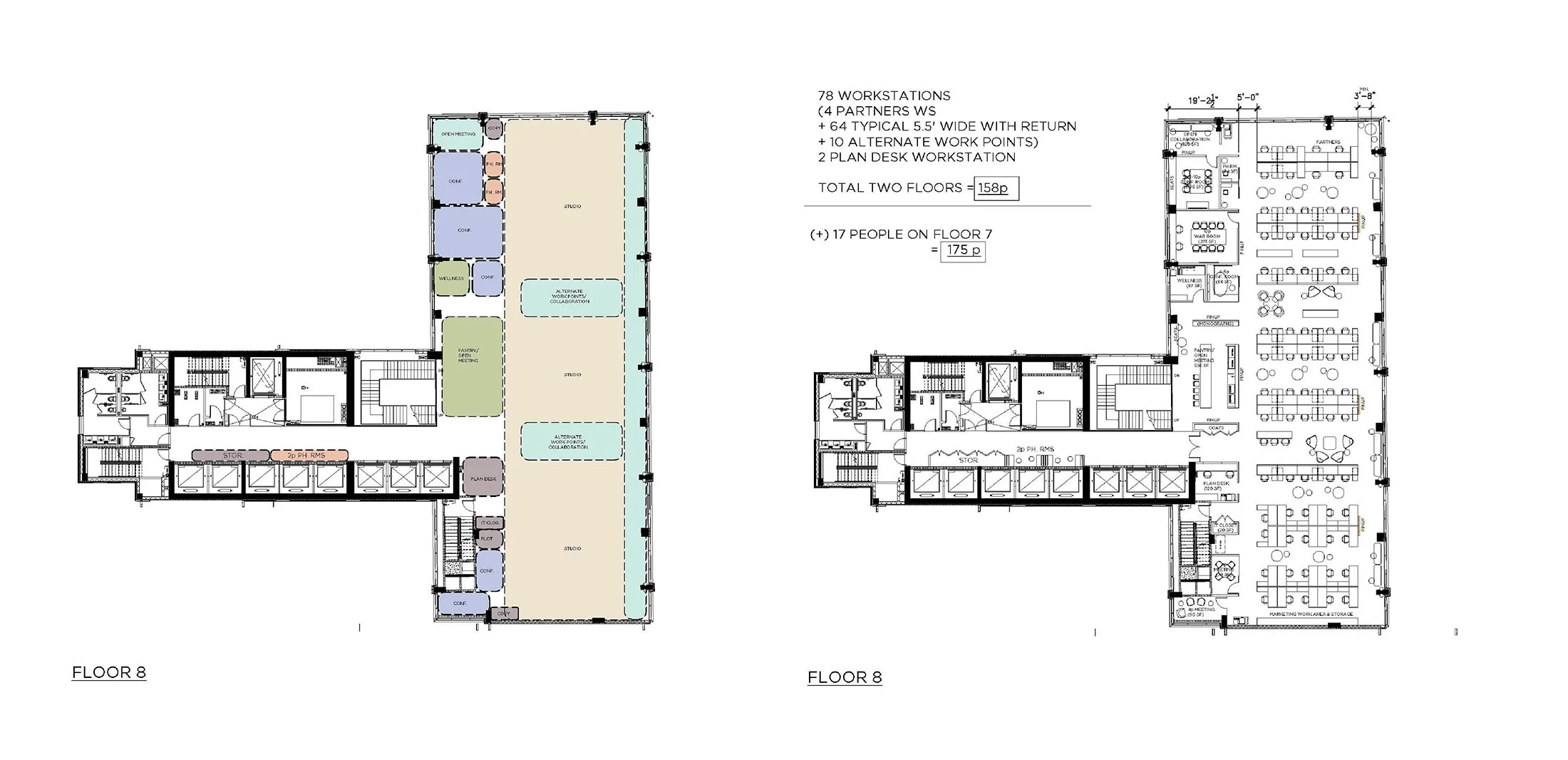
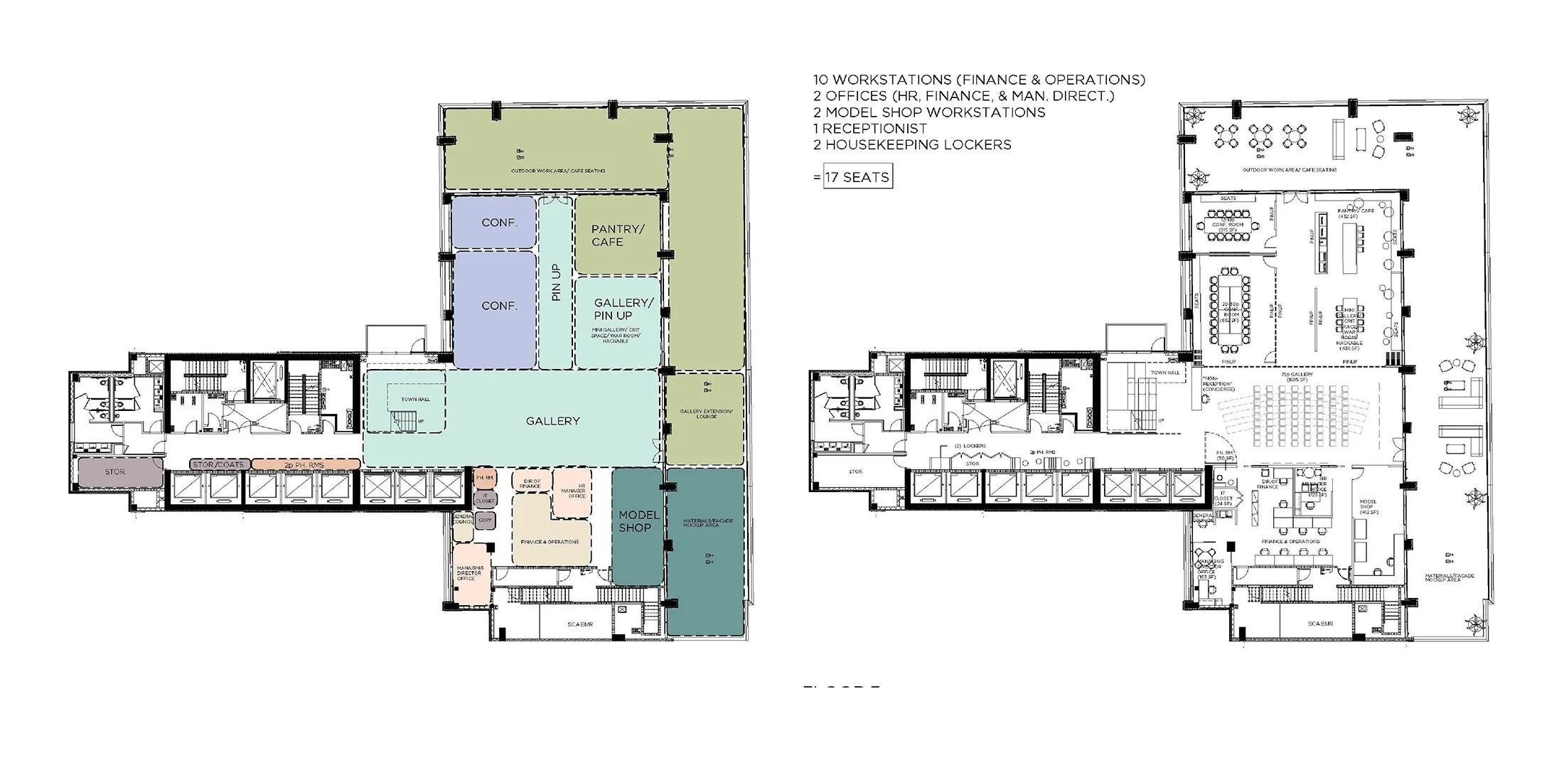
Throughout my career I’ve become the firm’s workplace planning expert , below is a collection of additional project plans and test fits.
Throughout my career I’ve become the firm’s workplace planning expert , below is a collection of additional project plans and test fits.