Bessemer Trust Annex

 
  • This new construction office curates a new truly “tech” experience for this financial firms technology team. The design introduced a new, functional work style to a team of innovators that were stuck in out dated, nonfunctional facilities and offered a fresh revitalization to this department, paving the way for future facility growth.

    Photos courted of VOA Architecture.

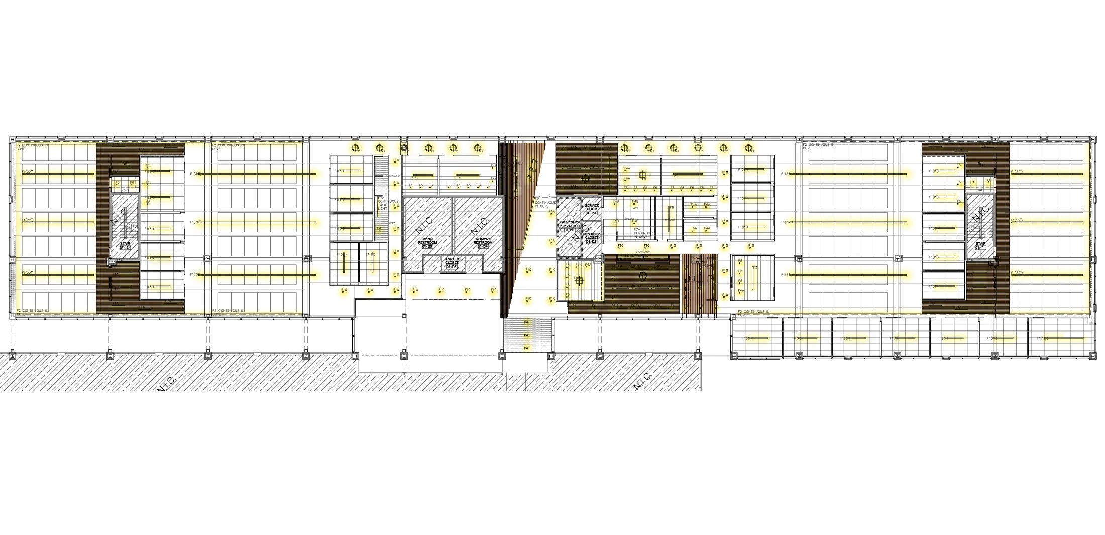
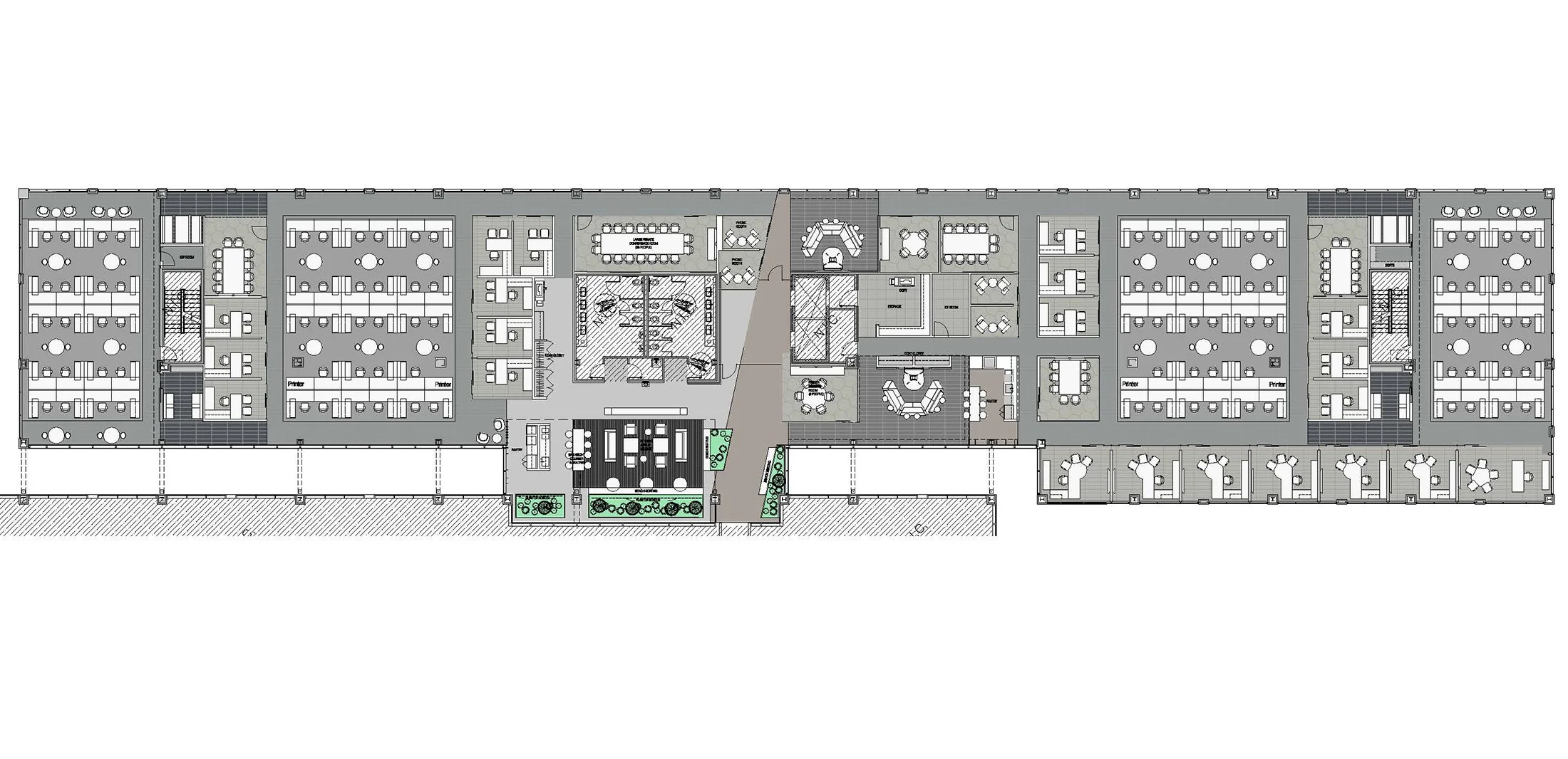
  • This office plan organizes the extremely long, thin floor plate into clear work “neighborhoods” with strategically inserted amenity and collaboration nodes and a centralized entry zone. This breaks up this otherwise mundane floor plate with areas of interest, using the floor, ceiling finishes, and strategically designed sight lines to create a way finding experience that is intuitive. This offers opportunity for unplanned social interaction and a sense of smaller scale community within such a large office environment.

    Project Locations: Woodbridge, New Jersey

    Project Size: 80,000 square foot

  • Project completed during my time at VOA Architectre (Now Stantec). I was the Lead Designer from project inception through all phases of design development including architectural space planning and detailing, selection of finishes, furniture, and lighting.

Design Process

Previous
Previous

Tech Incubator / Cafes and Social Hub

Next
Next

NYU Langone Offices Schematic Design